top of page
3204

3204

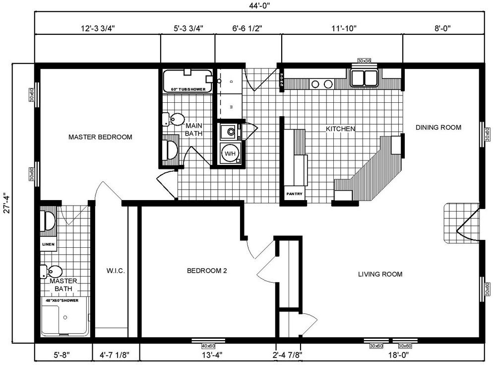
This home is made up of 2 bedrooms and 2 baths and is approximately 1,202 Sq Ft.  This home offers a nice open concept floor plan and a large master walk in closet.  This home also has the option to add on a front porch.  

  • Product Info

    This home is 28' X 52'

  • Manufacturers Info

    Our homes are manufactured by Pine Grove Homes in Pennsylannia. Please visit there website for more info http://www.pinegrovehomes.com/

550 Tuckahoe Rd.
Marmora, NJ 08223

©2019 by Heritage Acres Coastal Community. Proudly created with Wix.com

bottom of page